179 Promenade du Portage — Chez Henri

Premium LEED Gold Commercial Office Space

Four distinct floors with 26,061 sq ft available. Heritage renovated. Panoramic views. Steps from Parliament Hill in Gatineau's government corridor.

Property Overview

179 Promenade du Portage

♻️

LEED Gold Certified

Heritage renovated with advanced air quality and energy-efficient infrastructure

26,061
Total Available Area (sq ft)
4
Floors Available (2nd–5th)
$32
All-In Rate (per sq ft/year)
3–10
Lease Term (years, negotiable)

Le 179 Promenade du Portage abrite le bureau de circonscription de l’hon. Greg Fergus, C.P., député de Hull–Aylmer — Suite 301. 819-994-8844 | Contacter le bureau du député →

179 Promenade du Portage is home to the constituency office of the Hon. Greg Fergus, P.C., Member of Parliament for Hull–Aylmer — Suite 301. 819-994-8844 | Contact the MP’s office →

Available Spaces

Four Distinct Floors

New Listing

Ground Floor — Street-Level Commercial Space

~1,200 sq ft of turnkey street-level space at $4,800/month all-inclusive. Previously operated as a high-end salon. Immediate availability.

View Listing →

Concorde Floor

5th Floor — Executive Wing

3,116
Total Sq Ft
3
Suites

Parliament Suite, Cabinet Suite, and Ambassador Suite. Executive-grade finishes with panoramic views overlooking Gatineau and Ottawa. Premium positioning for C-suite and government relations.

5th Floor Concorde Floor plan showing Parliament, Cabinet, and Ambassador suites

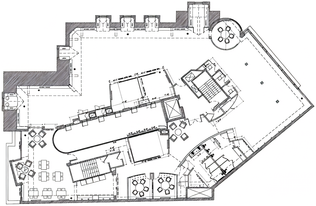
Strategy Floor

4th Floor — Open Plan

5,924
Total Sq Ft
1
Floor

Full-floor open layout ideal for collaborative teams. Flexible subdivision available. Natural light throughout. Perfect for consulting firms, think tanks, and government-adjacent operations.

4th Floor Strategy Floor open plan layout

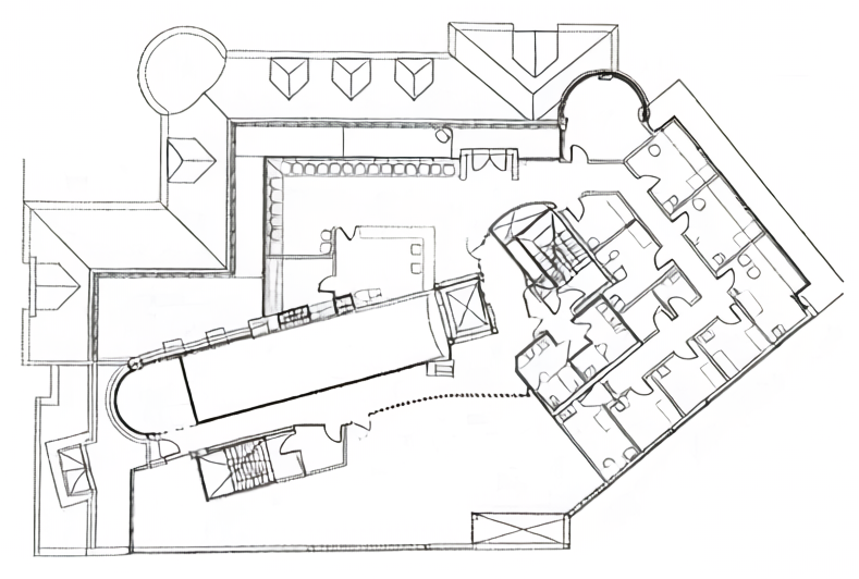
Innovation Floor

3rd Floor — Open Plan + Meeting Space

7,530
Total Sq Ft
1
Floor

Largest available floor. Full-floor open plan with integrated meeting and collaboration zones. Divisible by suite or lease as whole. Configured for innovation centers, accelerators, and startup hubs.

3rd Floor Innovation Floor plan showing open layout with meeting areas

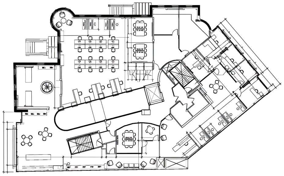
Forum Floor

2nd Floor — Meeting + Event Space

8,289
Total Sq Ft
1
Floor

Meeting-ready floor with modular layouts. Board rooms, breakout zones, and flexible event space. Premier positioning for organizations requiring high-volume client or stakeholder engagement.

2nd Floor Forum Floor layout with meeting spaces and modular areas
Lease Structure

Competitive Terms

Component Rate Notes
Base Rate $17 / sq ft / year All floors
Operating Costs $15 / sq ft / year Includes utilities, maintenance, security, building services
All-In Rate $32 / sq ft / year Total occupancy cost
Lease Term 3–10 years Negotiable based on commitment
Tenant Improvement Allowance Negotiable Tailored to space customization needs
Co-Brokerage 50/50 Standard industry split

All rates shown are annual all-in pricing. Multi-year commitments and multiple-floor leases may be subject to negotiation. Contact us for detailed lease packages.

Virtual Experience

360° Building Tour

Take a complete virtual tour of 179 Promenade du Portage. Explore all available floors, meeting spaces, and the building's heritage architecture and modern amenities.

Strategic Location

Government Corridor Proximity

179 Promenade du Portage is positioned at the heart of Canada's National Capital Region government corridor.

6 min
Drive to Parliament Hill
30 min
Walk to Parliament Hill
10,000+
Federal Employees Nearby (Place du Portage)
Walking Distance
QC Provincial Ministries & City Hall

Address: 179 Promenade du Portage, Gatineau, QC J8X 2K6

Explore More

Related Properties & Services

Get in Touch

Start the Conversation

179 Promenade du Portage

Gatineau, QC J8X 2K6

Administrator

Joseph Soares

MBA, Adm.A., PMP

International Business Promotion (IBPROM) Corp.