Campus Corridor de la Capitale

179 et 191 Promenade du Portage

Au cœur du corridor gouvernemental le plus concentré du Canada — où l'autorité fédérale, provinciale et municipale convergent pour créer des opportunités commerciales sans précédent.

Certifié LEED Or
Centre-ville Gatineau
200m de la Place du Portage
2
Propriétés
44 500+
Pi² disponibles
5
Paliers de gouvernement
10 min
Marche vers la Colline

Nos Propriétés

179 Promenade du Portage
Chez Henri
Certification LEED Or
Étages 5 niveaux
Espaces disponibles 936 à 8 289 pi²
Total ~18 400 pi²
191 Promenade du Portage
Place des Explorateurs
Configuration Immeuble complet
Surface 26 057 pi²
État Coque vierge
Opportunité Aménagement sur mesure

Espaces Disponibles

179 Promenade du Portage — Chez Henri, Certifié LEED Or

5e
Étage — Espace de bureaux sophistiqué
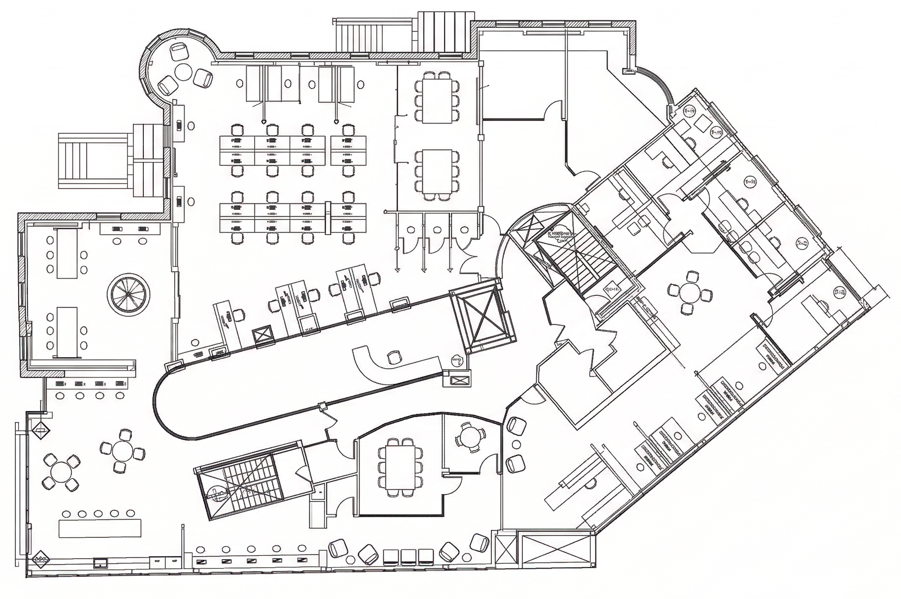
Floor Plan 5
Brute 8 289 pi²
Nette 7 780 pi²
Configuration Plan ouvert
Loyer estimé ~20 033 $/mois

Espace intégral à étage avec accès direct aux ascenseurs, luminosité maximale, vues dégagées sur la région, et proximité directe des services gouvernementaux. Idéal pour les organisations requérant présence et visibilité au centre décisionnel du pays.

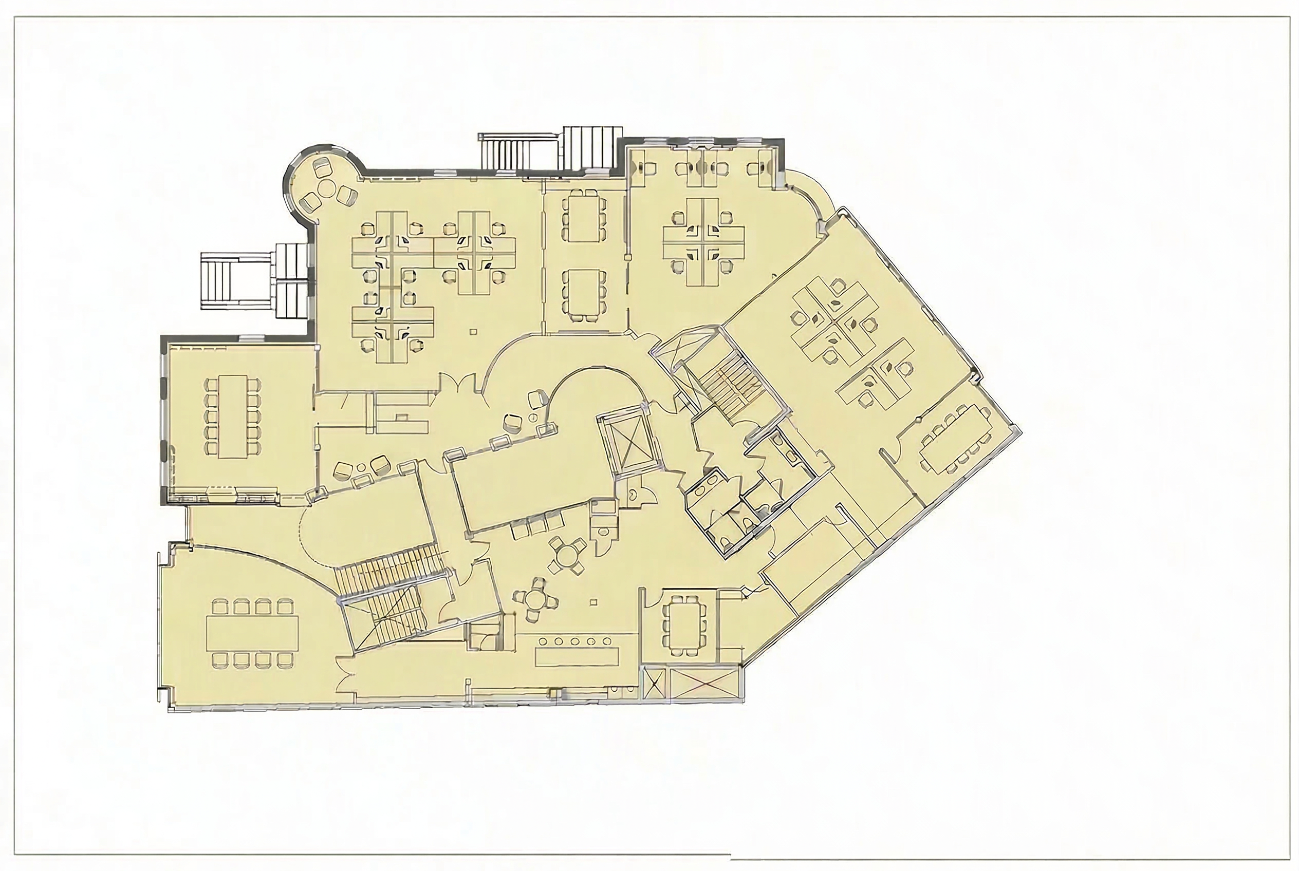
3e
Étage — Espace modulable premium
Floor Plan 3
Surface totale 7 530 pi²
Configuration Espace ouvert
Loyer estimé ~18 198 $/mois
Disponibilité Immédiate

Espace modulable à configuration ouverte permettant division flexible selon besoins spécifiques. Accès aux installations complètes du bâtiment, stationnement prioritaire disponible, et infrastructure pour organisations multifonctionnelles. Idéal pour équipes gouvernementales, consultants ou consortiums.

2e
Étage — Suites bureaux privés
Floor Plan 2
Brute 7 850 pi²
Nette 6 960 pi²
Configurations Suites privées
Loyer estimé ~18 960 $/mois

Configuration de suites de bureaux fermés avec séparation indépendante, idéale pour cabinets professionnels, firmes juridiques, ou agences de conseil. Chaque suite bénéficie d'entrée autonome, climatisation zone, et accès aux services communs. Parfait pour prestige et discrétion.

Le Campus Corridor de la Capitale n'est pas simplement un espace commercial — c'est une adresse sur la carte décisionnelle du Canada, où vos affaires convergent avec le pouvoir.

Répertoire du Campus

5e
Organisations multinationales, sociétés de conseil stratégique
3e
Équipes gouvernementales, consortiums provinciaux
2e
Cabinets professionnels, firmes juridiques spécialisées
RDC
Services client, accueil, services auxiliaires
Sous-sol
Stationnement sécurisé, accès technique, entreposage

Conditions de Bail

Stationnement
Extérieur : 250 $/mois · Intérieur exécutif : 350 $/mois
Premier arrivé, premier servi
Charges Communes
Incluses dans loyer : chauffage, climatisation, services de conciergerie, entretien immobilier, assurances bâtiment.
Flexibilité de Bail
Termes de 1 à 10 ans négociables. Options de renouvellement avec escalade prévisible. Extensions au-delà de 5 ans disponibles avec conditions avantageuses.
Infrastructure Technologique
Fibre optique 10 Gbps, redondance internet, infrastructure réseau robuste, accès aux services gouvernementaux numérisés, salle de serveurs conforme aux normes fédérales.
Aménagements
Cafétéria de classe affaires, salle de conférence, espaces collaboratifs, réception 24/7, accès haut de gamme à transports publics, proximité restaurants haut de gamme.
Conformité Environnementale
Certification LEED Or (179 uniquement). Systèmes économes en énergie. Matériaux durables. Conformité aux normes de qualité d'air intérieur. Programmes de recyclage complets.

Localisation Stratégique

Gouvernement Fédéral

Place du Portage (à 200m) : Complexe qui accueille plus de 10 000 fonctionnaires fédéraux. Centre majeur des ministères clés, agences fédérales, et services gouvernementaux. Siège de plusieurs portefeuilles ministériels critiques. Infrastructure administrative la plus dense de la région.

Gouvernement Provincial

Bureaux régionaux du Québec à proximité directe. Sièges des organisations provinciales, services québécois spécialisés. Accès immédiat aux autorités provinciales et aux décideurs québécois de premier plan.

Gouvernement Municipal

Hôtel de ville de Gatineau et bureaux municipaux dans le secteur. Accès direct aux autorités municipales, services à la collectivité, et infrastructure locale. Zone de gouvernance complète au niveau municipal.

Autorités Judiciaires

Palais de justice et cours fédérales à distance de marche. Infrastructure judiciaire majeure accessible directement. Idéal pour firmes juridiques, avocats, consultants en droit.

Colline du Parlement

À 10 minutes à pied. Cœur battant de la démocratie canadienne. Proximité aux bureaux des parlementaires, des caucus politiques, et de l'infrastructure centrale. Accès aux plus hauts niveaux de gouvernance législative.

Musée Canadien de l'Histoire

Voisin immédiat. Attraction touristique majeure, centre culturel canadien, espace de prestige et de rayonnement. Récréation professionnelle, événements corporatifs, et réceptions de classe affaires en contexte prestigieux.

CORRIDOR DE GOUVERNANCE CANADIENNE

Proximité à 5 paliers d'autorité gouvernementale

L'adresse incontournable pour influencer et participer

191 Promenade du Portage · Place des Explorateurs

Opportunité d'Immeuble Complet

Place des Explorateurs offre une opportunité exceptionnelle : une coque d'immeuble complète et vierge, prête pour aménagement sur mesure. Avec 26 057 pieds carrés, cet immeuble neuf permet aux locataires de créer un environnement de travail entièrement personnalisé, adapté à la vision et aux exigences opérationnelles les plus ambitieuses.

Situé au cœur du corridor gouvernemental le plus concentré du Canada, cet immeuble est parfait pour organisations cherchant présence majeure, flexibilité totale d'aménagement, et contrôle complet de l'infrastructure physique et technologique. Discussions de bail maintenant ouvertes pour locataires d'envergure.

191 Promenade du Portage
26 057 pi²
Coque vierge pour aménagement

Visites Vidéo

179 Promenade du Portage — Chez Henri
191 Promenade du Portage — Place des Explorateurs

Prenez Contact

Adresses

179 Promenade du Portage
Gatineau, QC J8X 2K6

191 Promenade du Portage
Gatineau, QC J8X 2K6

Téléphone

+1 (819) 123-4567

Horaires de Bureau

Lundi – Vendredi : 9h00 – 17h00
Samedi – Dimanche : Sur rendez-vous

Visites guidées disponibles sur demande.